- HOME
- マンションギャラリー
- 大森サンハイツ
交通・案内図
室内・モデルルーム
設備仕様構造
周辺環境
物件概要・スケジュール
| 物件名 | 大森サンハイツ |
|---|
| 交通機関 | 京急本線『大森海岸』駅 徒歩 約2分分 JR京浜東北線『大森』駅 徒歩 約8分分 |
|---|
| 所在地 | 東京都品川区南大井3-30-1 |
|---|
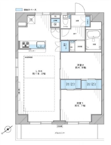
| 間取り | 2 LDK |
|---|
| 間取り詳細 | LDK約18.3帖、洋室(1)約5.7帖、(2)約4.8帖 |
|---|
| 専有面積 | 約64.80㎡㎡ |
|---|
| バルコニー面積 | 約8.64㎡㎡ |
|---|
| 建物向き | 南西 |
|---|
| 土地権利 | 所有権 |
|---|
| 建物階数 | 10階建て |
|---|
| 所在階 | 2階 |
|---|
| 建物構造 | SRC |
|---|
| 築年月 | 1973年05月 |
|---|
| 都市計画 | 市街化区域 |
|---|
| 用途地域 | 準工業地域 |
|---|
| 駐車場 | 空無 |
|---|
| 接道 |
|
|---|
| 地目 | 宅地 |
|---|
| 現況 | 空 |
|---|
| 総戸数 | 82戸 |
|---|
| 販売戸数 | 1戸 |
|---|
| 管理費 | 13,020円 |
|---|
| 修繕積立金 | 15,150円 |
|---|
| 引渡し | 即時 0000年00月00日 |
|---|
| 設備 | ペット飼育可(飼育規約有) |
|---|
| 物件番号 | WA19937J |
|---|























