| 最寄駅 | 徒歩 バス |
所在地 | 間取り | 専有面積 | 築年数 | 賃料 管理費等 |
敷金 礼金 |
|---|---|---|---|---|---|---|---|
| 京急本線『大森町』駅 | 徒歩 約7分 | 東京都大田区大森西3-12-6 | 1LDK | 約37.5帖 | 2007年8月築 |
【ご成約済】 7,000 |
131,000 131,000 |
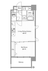
物件写真・間取り
物件概要
| 物件名 | 【ご成約済】ケンジントンマンション大森WEST | ||
|---|---|---|---|
| 交通機関 | 京急本線『大森町』駅 徒歩 約7分 |
||
| 間取詳細 | LDK約9.6帖、洋室(1)約5.9帖 |
||
| 専有面積 | 約37.5帖 |
||
| 建物構造 | RC |
所在階 / 階数 | 8階建5階部分 |
| 主要採光面 | 東 |
バルコニー面積 | 約4.33㎡ |
| 駐車場 | 駐車場料金 | ||
| 住宅保険 | 保険料 | 20,000円(2ヵ年) | |
| 契約期間 | 2ヵ年 |
||
| 引渡 | 即日 |
現況 | 空家 |
| 設備・条件 | ペット飼育可能(敷金3ヶ月)規約有 |
||
| 備考 | |||
| 取引態様 | 媒介 |
物件番号 | |























