| 最寄駅 | 徒歩 バス |
所在地 | 間取り | 専有面積 | 築年数 | 賃料 管理費等 |
敷金 礼金 |
|---|---|---|---|---|---|---|---|
| 東急世田谷線『松陰神社』駅 | 徒歩 約16分 | 東京都世田谷区世田谷4-5-4 | 1DK | 約40.08㎡ | 2006年4月 |
【ご成約済】 5,000 |
130,000 130,000 |
物件写真・間取り
物件概要
| 物件名 | 【ご成約済】ZESTY松陰神社Ⅱ | ||
|---|---|---|---|
| 交通機関 |
東急世田谷線『松陰神社』駅 徒歩 約16分 東急世田谷線『世田谷』駅 徒歩 約6分 東急田園都市線『駒澤大学』駅 徒歩 約20分 |
||
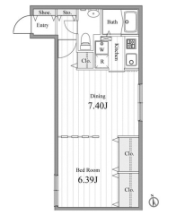
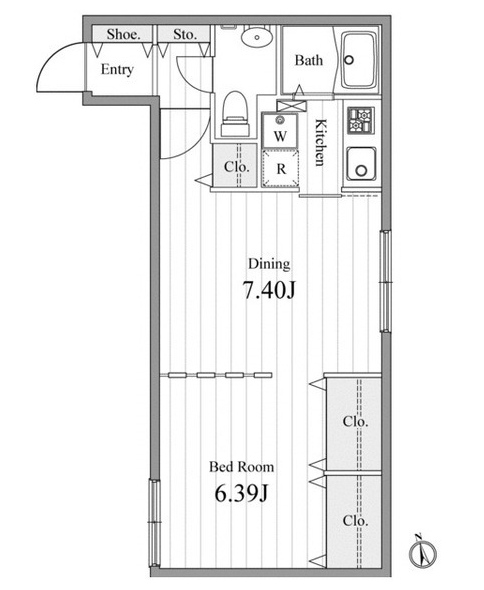
| 間取詳細 | DK約7.4帖、洋室(1)約6.39帖 |
||
| 専有面積 | 約40.08㎡ |
||
| 建物構造 | RC |
所在階 / 階数 | 4階建1階部分 |
| 主要採光面 | 西 |
バルコニー面積 | |
| 駐車場 | 駐車場料金 | ||
| 住宅保険 | 保険料 | 20,000円(2ヵ年) | |
| 契約期間 | 2ヵ年 |
||
| 引渡 | 即日 |
現況 | 空家 |
| 設備・条件 | |||
| 備考 | |||
| 取引態様 | 媒介 |
物件番号 | |
























