【契約済み】
【 マンション 】★築浅 セキュリティ万全 青梅の自然環境抜群のスローライフ★
| 最寄駅 | 徒歩 バス |
所在地 | 面積 | 築年数 | 価格 | 間取り |
|---|---|---|---|---|---|---|
| JR青梅線『小作』駅 | 徒歩 約9分 | 東京都青梅市新町3-49-1 | 専有面積/約66.56㎡ |
平成19年5月築 | 【ご成約済】 | 3LDK |
★内装リフォーム/ハウスクリーニング済
★セキュリティ万全
★100%駐車場完備
★小作駅徒歩約9分
★ペット飼育可(管理規約有)
★ワイドバルコニー奥行2m
★フラット35S利用可能
★買物利便性良好
★住宅取得ローン控除適用
物件写真・間取り
物件概要
| 交通機関 | JR青梅線『小作』駅 徒歩 約9分 |
||
|---|---|---|---|
| 所在地 | 東京都青梅市新町3-49-1 |
||
| 物件名 | 【ご成約済】レクセル小作パークス |
||
| 価格 | 【ご成約済】 | 間取り | 3LDK |
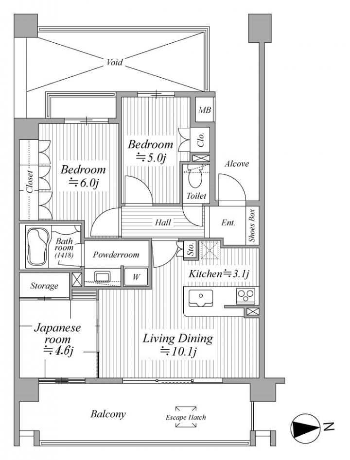
| 間取り詳細 | LDK約13.2帖、洋室(1)約6.0帖、(2)約5.0帖、和室約4.6帖 |
||
| 専有面積 | 約66.56㎡ | 土地権利 | 所有権 |
| 土地面積 | 私道負担面積 | 無し | |
| 建物面積 | 建物構造 | RC | |
| 階 / 階数 | 6階建て5階部分 |
築年月 | 平成19年5月築 |
| 都市計画 | 市街 | 用途地域 | 一中 |
| 建ぺい率 | 容積率 | ||
| 駐車場 | 空有 機械式月額1,000円~H26.7.25確認時空き有 | ||
| 接道状況 | 三方 | 接道方向 | 東 |
| 道路幅員 | |||
| 地目 | 宅地 | 現況 | 空室 |
| 販売戸数 | 1戸 |
||
| 管理費 | 13,167円 | 修繕積立金 | 11,980円 |
| 引渡し | 即時 | ||
| 設備 | |||
| 備考 | ご内見ご希望の方は事前に予約が必要となります。お問合せ0120-980-930 株式会社エンデバーソリューション事業部までご連絡ください。メールの場合はinfo@endnever.co.jp | ||
| 取引態様 | 専属 | 物件番号 | C21889endnever |































