【契約済み】
【 マンション 】【リノベーション】美しい桜並木道、閑静な住宅街、安心のオートロック、買い物便利
- 最寄駅
東急東横線「学芸大学」駅 徒歩 15分
- 所在地
- 東京都目黒区碑文谷4-6-9
- 面積
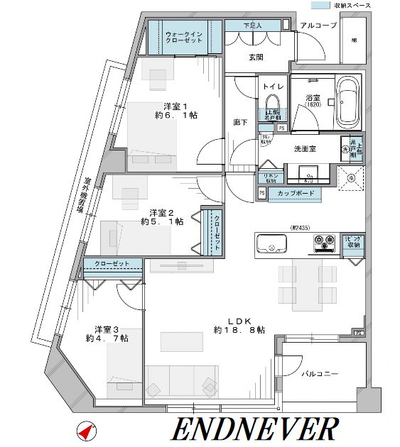
専有/約80.22㎡
- 築年月
- 2002年11月
- 価格
- 【ご成約済】
物件画像
物件概要
- 物件名
- 【ご成約済】サンフル碑文谷碑さくら通り NORTH SIDE
- 交通機関
-
東急東横線「学芸大学」駅 徒歩 15分
東急東横線「都立大学」駅 徒歩 13分
- 所在地
- 東京都目黒区碑文谷4-6-9
- 土地権利
- 所有権
- 専有面積
- 約80.22㎡
- 建物構造
- RC
- 階 / 階数
- 4階
- 築年月
- 2002年11月
- 駐車場
- 空無 月額26000円~30000円 (随時空き状況は変わりますので、引き渡し後管理会社にお問い合わせください)
- 現況
- 空室
- 管理費
- 15600円
- 修繕積立金
- 19440円
- 引渡し
- 相談
- 備考
- 町内会費 月額100円
契約時、重要事項調査報告書等契約時公的必要書類取得費用は別途かかります - 取引態様
- 媒介
お気軽にお問い合わせください
★閑静な住宅街
★イオンスタイル碑文谷まで徒歩5分
★複数路線利用可能
★安心のオートロック
★管理体制良好
★新耐震基準